“玩學塊兒”是一個快速出現的項目制學習空間單元。未來教育更強調個體的自主學習、面對真實社會問題,提供系統化解決方案的能力。因此跨學科的項目制教學會成為一種教學常態。
▼項目概覽,
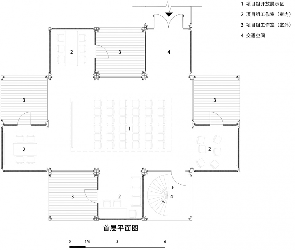
“玩學塊兒”由圍繞項目組開放展示區的若干項目組工作室構成,因為模塊化的空間設計,可成為未來學校可復制的基本空間單元。其中項目組工作室是小組與個人學習研究的獨立空間,核心的開放展示區是小組主要的展示和交流空間,社區也可通過這個空間參與到學校的教育之中。
▼模塊單元示意
▼主入口
▼模塊化的空間設計可成為未來學校可復制的基本空間單元
“玩學塊兒”旨在探討“破解上學難”的問題,即如何在城市閑置空地上快速搭建、以緩解城市上學難的痛點。為此,建筑采用中建科技的集成房屋模塊來建造,以框架式的箱體為基本預制單元,全部構件在工廠生產,現場安裝只花了3天的時間。展覽結束后可以全部拆除并重復利用。
▼軸測圖
▼框架式的箱體為基本預制單元,全部構件在工廠生產,
▼主入口及連廊(左);主入口及項目組工作室-室外(右)
“玩學塊兒”作為未來+學院策劃的“閃建策略園”的一部分,參與了2019年深港雙城雙年展。展覽期間,承擔園區具體教學展示的功能,項目開放展示區中介紹眾建筑研發的玩學架(Plugin Learning Loft),該項目是一個學前兒童的空間教具研究計劃,旨在將空間作為早期教育的第三個教學維度。 玩學架由基本的空間框架和可替換的填充物料組成,這些多樣化的填充物料支持通過游戲來進行學習。
▼入口展廊,
▼“玩學塊兒”在展覽期間展示眾建筑研發的玩學架
▼使用中的玩學架
▼從二層空間看中庭
▼項目組工作室-室內,
▼首層平面圖,
▼北立面圖,north elevation
項目名稱:玩學塊兒
主辦方:龍崗區人民政府
項目地點:深圳龍崗區
建筑面積:330平方米
備注:本案例來源于網絡,此案例僅供參考瀏覽,如有版權問題,請第一時間聯系我們,我們會盡快配合你們進行處理,謝謝。


服務熱線:15327288876




